Enebolig
Hus fra 1970 tallet. Totalrenovering
Innvendig rives alt for å bygge ny planløsning.
Mot nord skal det bygges tilbygg som skal romme nytt kjøkken.
Oppstart av arbeider - juli 2016
Alle skillevegger innvendig er revet ut.
Utvendig fjernes tilbygg (terrasse), og terreng senkes for å bygge tilbygg og drenere rundt bygget.
Gammel planløsning
Det gjøres klart for nytt tilbygg og garasje
Sept 2016
Det gjøres klart for å støpe kjeller i tilbygg mot nord
September 2016
Kjeller
September 2016
Stue har ett vindu mot utsikten - enn så lenge.
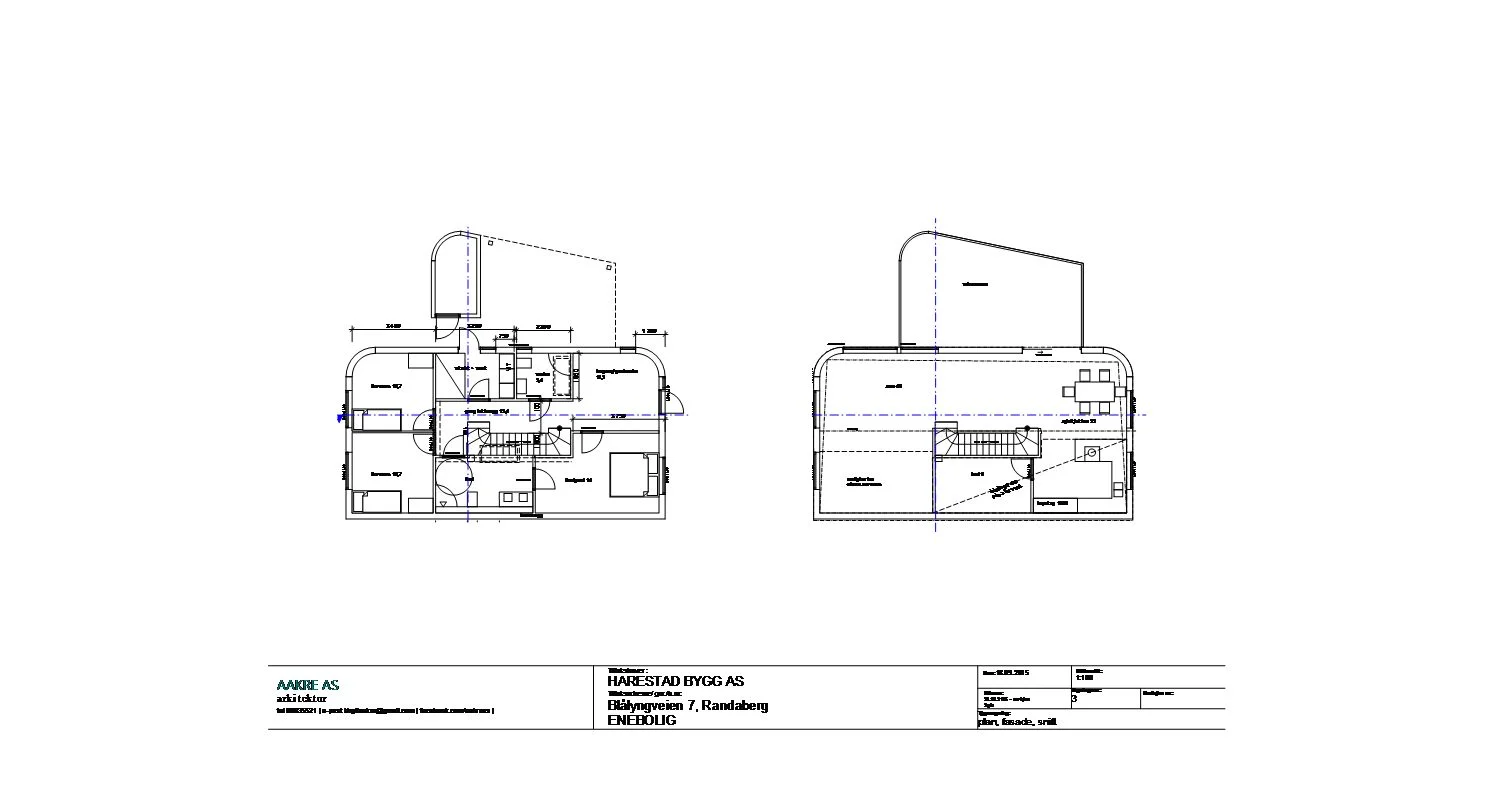
Randaberggeilen 17, Randabergfjellet
ny enebolig i LNF område.
Byggherre ønsker en bolig som har vidt utsyn, samtidig som den ikke skal ruve i landskapet.
Det ble valgt å lage en lang fasade mot utsikt i vest med god utsikt fra alle rom. Fra stue i 2. etasje kan en fantastisk utsikt nytes. Både mot nord/vest, sør/vest og sør/øst.
Write here...
Fortetting i Randaberg
Stor eneboligtomt blir delt i 3 og det oppføres tre nye eneboliger.
I utgangspunktet var disse like, men de ble oppført av 3 forskjellige byggherrer og ble til slutt veldig forskjellige.
Fortetting - Stor eiendom med eldre enebolig. Boligen ble revet og erstattet av en tomannsbolig og en enebolig.
Eneboligen oppført i 2015/2016
Ord fra salgsannonsen for eneboligen:
"Lekkert, god planløsning"
Boligen oppført av Harestad Bygg
Ombygging og tilbygg av eldre bolig
Ombygging av 2. etasje og loft til leilighet.
1. etasje blir kurslokale - Urban living
Gammelt tilbygg rives og nytt settes opp. Tilbygget inneholder 3 bad
Presentasjon av forskjellige prosjekter for å vise bredden av det jeg holder på med.
Gammel familiehytte har fått nye vinduer og kledning.
Et tilbygg av stue og anneks for å romme flere generasjoner.
Tomten er bratt 10 koter fra bunn til topp, noe som var en utfordring for plassering av tilbygget.
TIlbakeføring av to bygg fra 1860.
Riving av tilbygg i bakgården.
Oppføring av to små hus - Grunnflate 37m2
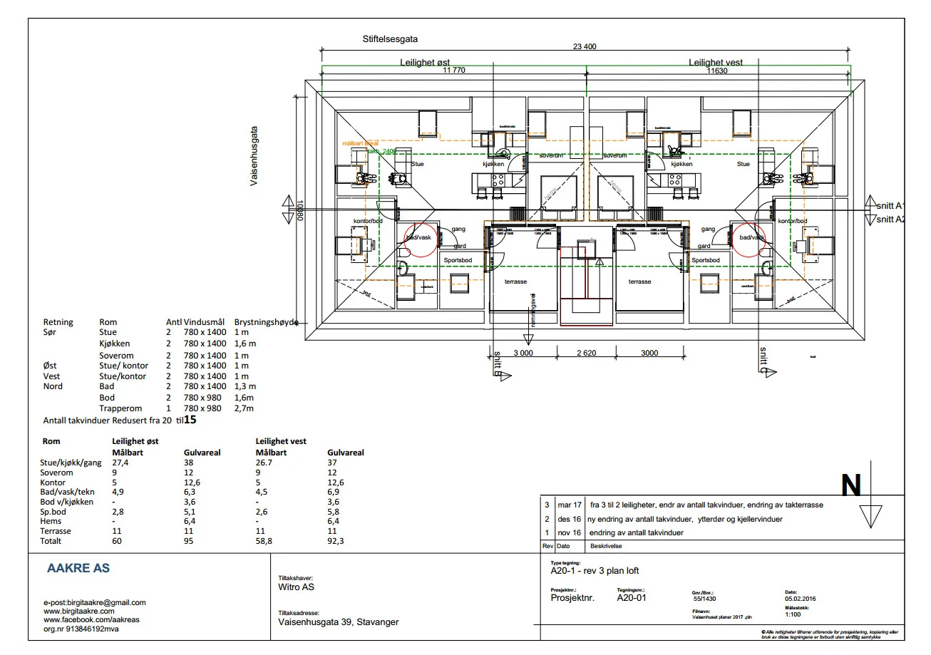
Vaisenhusgate 39
Prosjekt innen Trehusbyen i Stavanger
Tilbakeføring av fasade - kledning, listverk, vinduer og dører.
Ombygging av råloft til to leiligheter. Arealet på 24 x 11 meter bygges om til to flotte leiligheter med ett soverom, stor stue/kjøkken. Takterrasse med utsikt over Stavanger.